The Home Possible Project’s Plan

The Physical Space

The The Home Possible Project (HPP) has been provided a generous 6.8-acre parcel of land by the First United Methodist Church of Gilford-Laconia to build our Phase I Flagship Community Residence for adults with developmental disabilities in Gilford, NH.

The Community Residence will be certified and licensed by the NH Department of Health and Human Services and will meet all applicable federal, state, and local laws and regulations. Both the program and physical design reflect nationally recognized best practices in supportive housing for adults with developmental disabilities.

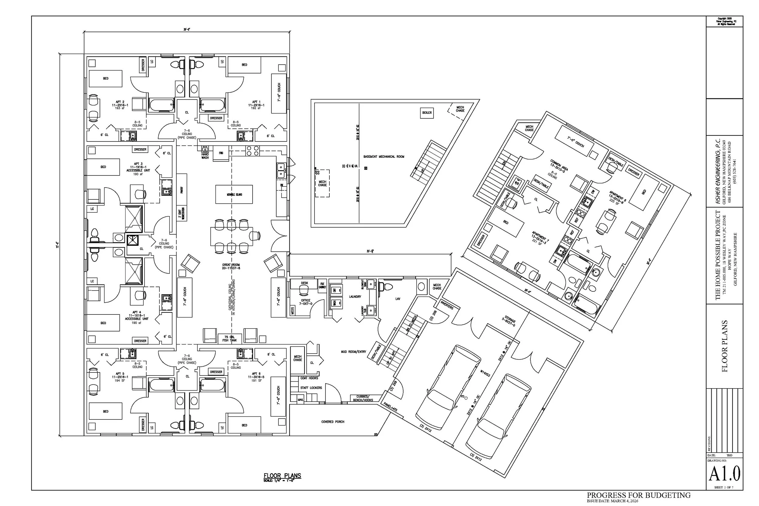
Following the Visions for Creative Housing Solutions model, the building will feature eight private studio apartments — each with its own bathroom and kitchenette — offering dignity, independence, and personal space. Shared areas, including a family room, kitchen and dining area, laundry room, and staff office space, are intentionally designed to foster connection, friendships, and a strong sense of community.

The residence will be energy-efficient, accessible, and built using universal design principles. Integrated Smart Home technology will enhance safety, communication, comfort, and health monitoring. Outside, gardens, water features, and gathering areas will provide welcoming spaces for recreation, relaxation, and social engagement.

Project oversight is led by HPP Board Vice-Chair Joel Fisher, a Professional Engineer with decades of experience in the building industry. Joel is working closely with Bonnette, Page & Stone, HPP’s selected Construction Management Firm, and HPP’s partner/consultants, Lakes Region Community Developers (LRCD).

Through experienced leadership and strong community partnerships, HPP is creating a safe, caring, and thoughtfully designed home where adults with developmental disabilities can live with dignity, independence, and lasting connection.

Supports & Services ‍ ‍

Our 24/7 staff will assist with daily living skills, food preparation, socialization, medications and health monitoring, recreation activities and provide transportation to employment, volunteer activities, community involvement and meeting up with friends. Further, activities will be based on the unique needs of each individual and be person-centered. Some of our future residents may already have established jobs, community involvement, and recreational and social activities that they enjoy, and they will be able to continue to participate in these activities.

Support Staff will be highly-qualified, experienced, compassionate and friendly. Staff will receive professional training, be certified as required and be thoroughly vetted. HPP’s Community Residence staff will include a Residence Manager; Direct Support Prossionals (DSPs); Licensed Nursing Assistants (LNAs), Nurse Trainer/s (Registered Nurse, RN); and administrative staff.

We are following the Visions for Creative Housing Solutions Model which has proven to promote self-determination, autonomy, and independence by providing tailored support that helps residents grow and thrive. Living among a caring circle of friends, with individualized wrap-around support services, allows each person to lead an engaged and fulfilled life, as a contributing member of our community.

Funding & Resources

The estimated cost to build our future Phase I Community Residence is approximately $4 million dollars, reflecting our commitment to creating a high-quality, inclusive environment for adults with developmental disabilities. It will be funded by our “Building Dreams” Capital Campaign seeking donations from individuals, businesses and foundations, as well as government and private sector grants, no-interest or low interest loans, in-kind supports, volunteerism, and any other means of bringing this important endeavor to fruition. Because there is such a need, once the first Phase I supportive housing community residence is established and successfully underway, the plan is to create a similar Phase II Community Residence close by on the same property.

The continuing operating costs will be paid through an affordable lease/rent charged to each resident. In addition, the support services and staff will be paid with federal and state funding through person-centered individualized budgets using the Medicaid Waiver, administered through NH Bureau of Developmental Services.   

The Home Possible Project’s Community Residence

“Phased-In Approach”

Reimagined for Greater Impact, Sooner

Project Overview

  • HPP has reimagined its Flagship Phase I Community Residence to deliver supportive housing more quickly and efficiently in response to rising construction costs and limited funding.

  • The project embodies HPP’s tagline: Imagine, Believe, Achievebringing homes and community to life.

  • The residence will be built on 6.8 acres of land generously provided by the First United Methodist Church of Gilford-Laconia.

Phase I & II Approach

  • Phase I: Permanent, home-like residence for 8 adults with developmental and similar disabilities. Six separate studio accessible apartments with bathrooms and kitchenette plus common kitchen/dining/family area and a laundry and staff office. There is an attached 2 car garage with 2 studio apartments above with common shared space.    

  • Phase II: Future expansion will provide housing for an additional 8 residents in a separate building nearby, on the same leased property, promoting both independence and shared community.

Investment & Timeline

  • Total estimated investment: $4 million dollars (Phase I)

  • Phase I construction expected to begin in 2027 (contingent on funding) with completion and occupancy by 2028.

  • Sustainable funding model: Room and board fees cover housing; support services funded via NH DHHS Community-Based Medicaid Waiver program.

Resident Experience & Design

  • Safe, welcoming, home-like environment designed for dignity, independence, and meaningful connection.

  • Six private studio apartments in the main building plus an attached 2 car garage with two studio apartments above for residents who thrive in a shared more independent setting.

  • Common spaces: Fully equipped kitchen, dining room, family room, laundry and staff office to encourage daily interaction.

  • Outdoor spaces: Gardens, walking trails, and recreational areas support wellness and community engagement.

Innovation & Sustainability

  • Universal design principles for accessibility and inclusivity.

  • Energy-efficient systems: Geothermal heating/cooling, PV solar energy, and sustainable building practices.

  • Smart home and assistive technologies enhance safety, independence, and communication.

  • First-of-its-kind Facility Service Dog Program provides companionship, emotional support, and safety.

Community Engagement

  • Residents will participate in employment, volunteering, recreation, and community relationships.

  • HPP fosters a scalable and sustainable model for supportive community living.

Impact

  • Provides long-term stability, dignity, and belonging for adults with developmental disabilities.

  • Creates a lasting home that supports independence, relationships, and lifelong stability.

  • Demonstrates HPP’s commitment to innovative, person-centered, and community-driven housing solutions.    

***Thanks to Board member Joel Fisher for creating our amazing Architectural Design Plan that will provide a forever home for our future residents!‍ ‍

Our Phase I Flagship Community Residence

“Building Dreams”

Please we need your support to make this vision for their forever home a reality